Dom Grójec, Józefa Piłsudskiego
Grójec Pokaż na mapie ›
Dodane: Czwartek, 02 Kwiecień, 2026 11:10
872 000 zł
8720 zł/m2
Szczegóły ogłoszenia
- Kategoria: Domy / Sprzedaż
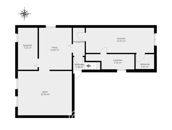
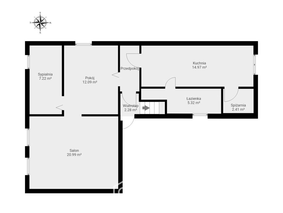
- Powierzchnia:100 m2
- Liczba pokoi:4 pokoje
- Pow. działki:1000 m2
- Rynek:Wtórny
- Sprzedaż:Pośrednik
- Cena: 872 000 zł / 8720 zł/m2
Opis oferty
Na sprzedaż nieruchomość położona w centrum Grójca, przy spokojnej, kameralnej ulicy, w bliskiej odległości od ul. Piłsudskiego. To oferta z dużym potencjałem, zarówno dla osób szukających domu do zamieszkania, jak i dla inwestora rozważającego przebudowę lub nową koncepcję zagospodarowania.Atuty nieruchomości:
- dom położony w ścisłym centrum Grójca
- spokojna i cicha uliczka
- bardzo dobra lokalizacja blisko ul. Piłsudskiego
- dom w dobrym stanie technicznym
- możliwość zamieszkania, przebudowy lub rozbudowy
- zadbany, pięknie utrzymany ogród
- posesja w całości ogrodzona
- dostęp do pełnej infrastruktury miejskiej
- światłowód, prąd, woda miejska
- ogrzewanie gazowe i elektryczne
Układ domu:
Dom składa się z 4 pokoi, w tym jeden przechodni, widnej kuchni oraz spiżarni. To funkcjonalny układ, który zapewnia wygodę codziennego użytkowania, a jednocześnie daje możliwość dostosowania wnętrza do własnych potrzeb.
Ogród i otoczenie:
Dużym atutem nieruchomości jest zadbany ogród, starannie pielęgnowany przez właściciela. To miejsce, które może stać się prywatną strefą wypoczynku, przestrzenią dla rodziny lub dodatkowym walorem przy planowanej inwestycji.
Lokalizacja:
Położenie w centrum Grójca zapewnia szybki dostęp do sklepów, szkół, punktów usługowych, komunikacji miejskiej i całej potrzebnej infrastruktury. To wygodne miejsce do życia, łączące miejski komfort z kameralnym położeniem.
Zapraszam do kontaktu i na prezentację. Chętnie opowiem więcej o tej nieruchomości oraz odpowiem na wszystkie pytania.
Jeśli zakup tej nieruchomości wiąże się ze sprzedażą innej lub wymaga finansowania kredytowego, pomogę Państwu sprawnie przejść przez cały proces.
Robert Cholewa
Broker i Ekspert ds. Nieruchomości
Licencja zawodowa nr 24439
tel. +48 576 - pokaż numer telefonu -
" Niniejsze ogłoszenie nie stanowi oferty w rozumieniu Kodeksu Cywilnego, lecz ma charakter informacyjny."
Numer oferty: 756224
Sprawdź zainteresowanie tym ogłoszeniem
Wyświetlenia
Data dodania
Ostatnio widziany
Obserwujących
Wysłane zapytania
Odsłony telefonu
Powiadom o podobnych ogłoszeniach
Lokalizacja: Grójec
Kategoria: Nieruchomości » Domy » Sprzedaż
Cena: od 741000 zł do 1003000 zł Powierzchnia : od 85 m2 do 115 m2
Chcę otrzymywać powiadomienia o nowych ofertach
- Wypromuj ogłoszenie
- Zgłoś naruszenie
- Drukuj ulotkę
- Edytuj/usuń ogłoszenie
- Udostępnij ogłoszenie
- Dodaj na Facebook






























